ACHIEVEMENTS Protect the silence of your living room! Heavy floor impact noise reduction by YS construction method!
anti-vibration device
Yacmo's vibration-absorbing floor “YS construction method” effectively reduces floor impact noise from children's jumping and other noises, creating a quiet and comfortable living environment downstairs.
Engineering Group, Division 1
Rei Suzuki
Issues in this case study
In school facilities, there are rooms that need to be kept quiet, such as the infirmary, music room, and multipurpose room, and rooms that are mainly active and do not need to be as quiet as the former, such as the gymnasium, so it is necessary to pay sufficient attention to the sound environment.
In recent years, more and more school facilities have been opened to local residents to be used as community centers, and the importance of sound environment countermeasures is further increasing because the noise generated by each other may interfere with the educational activities of the school and other public facilities.
In this building, too, a multi-purpose room (which requires quietness) is located on the lower floor of the gymnasium (which generates noise), and the client consulted with us to determine the highest possible floor impact sound insulation performance to prevent the noise from the gymnasium from being transmitted to the multi-purpose room.
Therefore, we proposed「Wet YS Floor※ 1which has our highest floor impact sound insulation performance, and conducted a predictive study of the heavy floor impact sound level when installed (Figure-1).
※1What is a wet-type YS floor? YS floor is a method of constructing a floating floor that provides better sound insulation than ordinary floating floors by installing an elastic body (anti-vibration rubber) only on a rigid beam on the floor. Wet type is a construction method in which the floating floor is made of concrete to further improve sound insulation.

The world of fashion is constantly changing, and it can be difficult to keep up. But there are a few key trends that have emerged in recent years. One of these trends is the increasing popularity of sustainable fashion. This means that more and more people are choosing to buy clothes that are made from eco-friendly materials and produced in an ethical way. Another trend is the rise of "athleisure." This is a style of clothing that blends athletic wear with everyday fashion, allowing people to be comfortable and stylish at the same time. Finally, we're seeing a growing interest in vintage and secondhand clothing. This trend is driven by a desire for unique pieces and a rejection of fast fashion. These are just a few of the many trends that are shaping the fashion industry today.
The results of the predictive study showed a heavy floor impact sound level of LH-50 (low sounding) on the bare slab※2surface with no countermeasures.
As a countermeasure, the following wet YS floors were used for the predictive study.
- Concrete floating floor is 150 mm thick
- Anti-vibration rubber isBall damper YB-401(Design natural frequency 6.0 Hz (with fixed load))
This countermeasure was found to reduce the heavy floor impact sound level to LH-30 (rarely heard under normal conditions). Based on these results, the decision was made to implement the countermeasure in wet YS floors.
※2 Slab bare surface refers to the state in which the concrete slab is left as it is with no finishing.
Table-1: Example of correspondence between the indicated scale and actual living conditions in a house

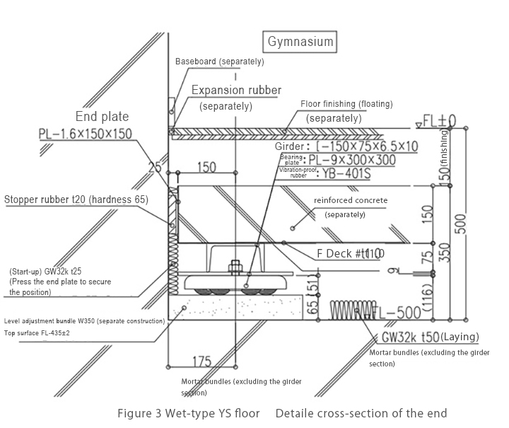
To prevent heavy floor impact noise, a wet YS floor as shown in Figure-2 and Figure-3 was installed in the (upper floor) gymnasium floor.


result
To confirm the floor impact sound insulation performance, heavy floor impact sound measurements were taken after the interior construction was completed. The measurement was made by shaking the gymnasium (upper floor) with a bung machine and measuring the heavy floor impact sound level in the multipurpose room (lower floor) (Figure-4).
The measurement results showed that the heavy floor impact sound level on the wet YS floor was rated “LH-30,” confirming that the heavy floor impact sound from the upper floor was significantly reduced on the lower floor (Figure-5).

